Autoria: Tomás Vieira (LEMec)
Na próxima quinta-feira, dia 9 outubro, o Técnico Innovation Center (TIC) será palco para o comício de fim de campanha de Carlos Moedas, mantendo-o encerrado até à manhã do dia seguinte. Para colmatar esta perda de espaços de estudo, o Conselho de Gestão ordenou que o Pavilhão de Civil volte temporariamente a funcionar vinte e quatro horas. No presente clima de aulas e avaliações, este redirecionamento vem agravando o problema de falta de espaços de estudo já sentido no IST.
Num e-mail enviado a toda a comunidade estudantil, os alunos do IST foram informados que, desde as 17h do dia 9 de outubro até às 8h do dia 10 de outubro, o seu maior espaço de estudo (e único aberto vinte e quatro horas) se encontrará encerrado. O Diferencial apurou que, naquela que é uma semana de avaliações, acontecerá o comício do final de campanha do candidato e atual presidente da Câmara Municipal de Lisboa, Carlos Moedas. Há que fazer notar que esta não é a primeira vez que o espaço é licenciado para eventos, muitas vezes simultâneos à presença de alunos a estudar no espaço acima.
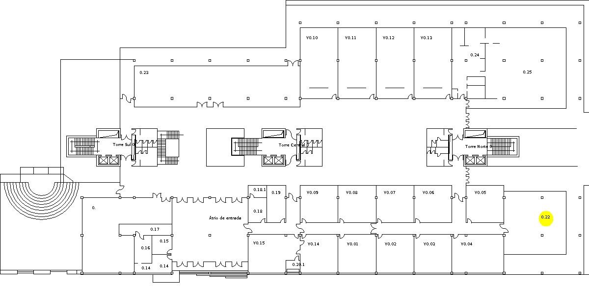
De acordo com o portal Pesquisa de Espaços IST, onde as plantas e capacidades de cada edifício são anotadas, é possível fazer-se rapidamente as contas de como esta substituição não é equivalente. Nisto, quando comumente nos referimos ao espaço de estudo de Civil, estamos a falar das salas do corredor à direita do átrio juntamente com a sala de estudo 0.22, conhecida como “Aquário”. No site, facilmente verificamos que todas as salas deste corredor equipadas para receber alunos recebem respectivamente:

V0.09 , V0.08, V0.07, V0.06, V0.02, V0.03 – Cada uma com 50 lugares teóricos
(sendo que a V0.14 e a V0.01 não tem qualquer menção de poderem ser ocupadas)
V0.04 – 75 lugares teóricos
V0.05 – 32 lugares teóricos
Sala de estudo 0.22 (Aquário) – 100 lugares teóricos
Nisto, o espaço de estudos 24h de Civil apresenta 532 lugares (teóricos). No entanto, a atual requalificação de algumas destas salas não está em conta, uma vez que muitas destas adotaram uma nova configuração, diferente da sala de aulas usual, com muito menos lugares.
Resumidamente, o problema centra-se nos números não baterem certo, especialmente quando introduzimos outros aspetos menos mensuráveis. Primeiramente, a repetitiva inclusão da palavra “teóricos” quando falamos em lugares é necessária pois não tem em conta o conforto das salas quando estas se aproximam do seu número limite nem a logística de cadeiras. Paralelo a isto, o TIC não cumpre a sua premissa inicial de 800 lugares, não por falta de espaço, mas sim de mesas e cadeiras.
Por fim, a sensação de falta de lugares de estudo crónica excede um mero sentimento, uma vez que o fecho da Biblioteca do Pavilhão de Civil para dar lugar à sala PIC e o fecho temporário da biblioteca do Pavilhão Central para requalificações, reduziram significativamente o número de lugares anteriormente disponíveis.
No início do ano passado, o Diferencial escreveu, mais detalhadamente, sobre este assunto, a ler em: A crise nos espaços de estudo do IST




